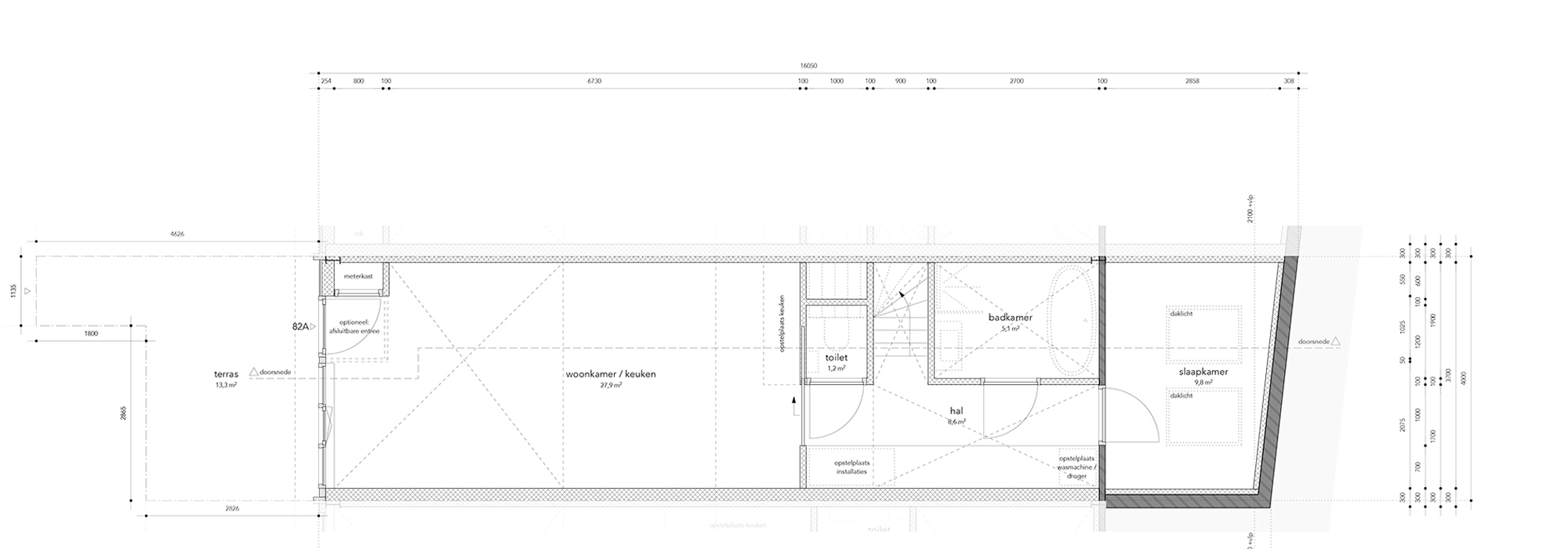
82A
Verkocht onder voorbehoud
Aan de Emmastraat in Rozenburg gaan wij deze voormalige smederij ‘omsmeden’ tot een zevental bijzondere en moderne woningen. Onderstaand vind je een overzicht van de specificaties van dit bouwnummer 82A:
Oppervlak: 78,6 m2
Perceel: 78 m2
Inhoud: 258 m3
Buitenruimte: terras
Slaapkamers: 2
Parkeerplaats: 1
Berging: 1
Prijs: van € 325.000 – € 335.000 k.k.
• Gehele renovatie
• Nieuwe NUTS voorzieningen
• Geheel nieuwe technische installatie met CV en MV
• Nieuwe kozijnen met HR++ glas
• Geïsoleerd dak met dakramen en zonnepanelen
• Oplevering TURN-Key, dat wil zeggen:
– Inclusief keuken met apparatuur
– Inclusief latex wandafwerking
– Inclusief toilet en badkamer
– Inclusief pvc vloerafwerking
Als koper krijg je de vrijheid om je eigen keuze in afwerking te maken.
Op de hoogte blijven van de laatste ontwikkelingen?
Meld je dan nu aan voor onze nieuwsbrief!
Ook wonen zoals je dat nooit
eerder hebt ervaren?
Wil je meer informatie over onze bijzondere transformaties? Neem dan vrijblijvend contact met ons op of vul het contactformulier hiernaast in. Wij vertellen jou graag meer!










